Projektowanie podjazdu to kluczowy element każdej posesji, wpływający zarówno na jej funkcjonalność, jak i estetykę. Ten kompleksowy poradnik przeprowadzi Cię przez wszystkie etapy planowania i budowy, od wyboru materiałów po aspekty prawne i kosztowe, pomagając stworzyć trwały i piękny podjazd, który posłuży przez lata.
Kompleksowy poradnik projektowania i budowy podjazdu do domu
- Minimalna szerokość podjazdu dla jednego auta to 3 metry, dla dwóch 5 metrów.
- Niezbędne są spadki (podłużny 3-4%, poprzeczny ok. 1%) dla efektywnego odprowadzania wody.
- Dla aut osobowych wystarczy nawierzchnia o grubości 6 cm, dla cięższych pojazdów 8 cm.
- Kostka brukowa, płyty betonowe, kamień naturalny, żwir i płyty ażurowe to popularne materiały.
- Koszt 1 m² podjazdu z kostki brukowej to orientacyjnie 160-230 zł, z płyt betonowych 170-350 zł, plus podbudowa 100-120 zł/m².
- Sprawdź Miejscowy Plan Zagospodarowania Przestrzennego (MPZP) pod kątem powierzchni biologicznie czynnej.

Dlaczego przemyślany projekt podjazdu to inwestycja, która się zwraca?
Poświęcenie czasu i uwagi na staranne zaprojektowanie podjazdu to nie tylko kwestia estetyki, ale przede wszystkim mądra inwestycja. Podjazd jest często pierwszym elementem posesji, jaki dostrzegają goście, dlatego jego wygląd stanowi wizytówkę całego domu i wpływa na pierwsze wrażenie. Jednak jego znaczenie wykracza daleko poza walory wizualne. Funkcjonalność na co dzień, czyli wygoda manewrowania, parkowania i łatwy dostęp do posesji, przekłada się na komfort użytkowania przez wszystkich domowników. Co więcej, dobrze zaprojektowany i wykonany podjazd charakteryzuje się wysoką trwałością i bezpieczeństwem. To z kolei oznacza uniknięcie kosztownych napraw i problemów w przyszłości, takich jak pęknięcia, zapadanie się nawierzchni czy problemy z odprowadzaniem wody. Warto pamiętać, że solidny i estetyczny podjazd znacząco podnosi również wartość całej nieruchomości.

Krok 1: Kluczowe decyzje projektowe, czyli fundament sukcesu
Zanim przystąpimy do wyboru materiałów czy prac budowlanych, musimy podjąć kilka fundamentalnych decyzji projektowych. To one stanowią podstawę funkcjonalnego i estetycznego podjazdu.
Jak optymalnie wyznaczyć wymiary podjazdu? Szerokość i długość w praktyce
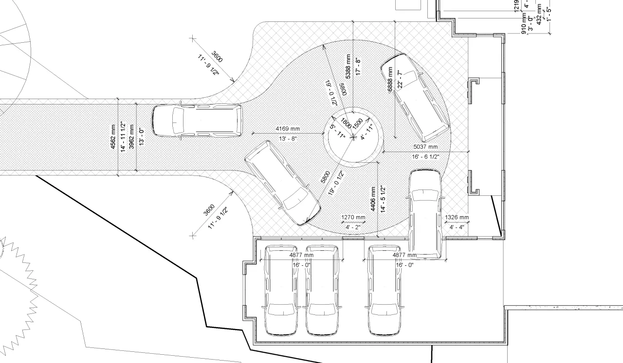
Kluczowe dla komfortu użytkowania są odpowiednie wymiary podjazdu. Minimalna szerokość dla jednego samochodu osobowego to 3 metry, co pozwala na w miarę swobodne manewrowanie. Jeśli jednak podjazd ma pełnić również funkcję dojścia do domu lub miejsca parkingowego dla gości, warto rozważyć jego poszerzenie do co najmniej 4,5 metra. W sytuacji, gdy planujemy parkowanie dwóch samochodów obok siebie, niezbędne jest zapewnienie szerokości minimum 5 metrów. Długość podjazdu również ma znaczenie standardowo przyjmuje się, że powinna wynosić co najmniej 5-6 metrów, aby umożliwić wygodne zaparkowanie pojazdu bez konieczności blokowania bramy czy wjazdu.
Gdzie zlokalizować podjazd na działce? Analiza trasy od bramy do garażu
Lokalizacja podjazdu powinna być przemyślana w kontekście całego układu działki. Optymalna trasa powinna prowadzić od bramy wjazdowej bezpośrednio do garażu lub strefy postojowej, minimalizując konieczność wykonywania zbędnych skrętów. Należy uwzględnić położenie domu, innych budynków gospodarczych, a także istniejące drzewa czy inne elementy krajobrazu, które mogą utrudniać przejazd. Ważne jest, aby trasa była jak najkrótsza i najbardziej bezpośrednia, a jednocześnie estetycznie wpisywała się w otoczenie.
Prosty, łukowy czy w kształcie podkowy? Jaki kształt podjazdu sprawdzi się u Ciebie najlepiej?
Kształt podjazdu powinien być dopasowany do wielkości i charakteru działki oraz stylu architektonicznego domu. Prosty, prostokątny podjazd jest często najłatwiejszy w wykonaniu i najbardziej funkcjonalny na niewielkich lub regularnych działkach. Łukowaty podjazd może dodać elegancji i płynności, a także lepiej wpasować się w działki o nieregularnych kształtach. Podjazd w kształcie podkowy, często spotykany przy domach z centralnym wejściem, pozwala na łatwe manewrowanie i tworzy reprezentacyjny wjazd. Wybór kształtu powinien uwzględniać zarówno estetykę, jak i praktyczne aspekty użytkowania.
Spadki i odwodnienie niewidoczni bohaterowie funkcjonalnego podjazdu
Niezwykle ważnym, choć często niedocenianym elementem projektowania podjazdu są spadki. Odpowiednio zaprojektowane nachylenie nawierzchni jest kluczowe dla skutecznego odprowadzania wody opadowej. Zalecany spadek podłużny wynosi zazwyczaj 3-4%, natomiast spadek poprzeczny około 1%. Dzięki temu woda deszczowa lub roztopowy śnieg nie będą zalegać na powierzchni, tworząc kałuże, które zimą mogą prowadzić do oblodzenia i uszkodzeń nawierzchni. Warto również rozważyć zastosowanie systemów odwodnienia liniowego lub punktowego, które dodatkowo usprawnią odprowadzanie wody.
Krok 2: Jaki materiał na podjazd wybrać? Przegląd najpopularniejszych rozwiązań
Wybór odpowiedniego materiału na nawierzchnię podjazdu to decyzja, która wpływa na jego wygląd, trwałość, koszty oraz sposób pielęgnacji. Poniżej przedstawiam przegląd najczęściej wybieranych opcji.
Kostka brukowa ponadczasowy klasyk czy nowoczesne wzornictwo?
Kostka brukowa to bez wątpienia najpopularniejszy materiał wybierany do budowy podjazdów. Jej ogromną zaletą jest wszechstronność dostępna jest w niezliczonych kształtach, rozmiarach, kolorach i fakturach, co pozwala na tworzenie zarówno klasycznych, jak i bardzo nowoczesnych aranżacji. Kostka brukowa jest materiałem trwałym, odpornym na mróz i obciążenia, a w przypadku uszkodzenia pojedynczego elementu, jego wymiana jest stosunkowo prosta. Orientacyjny koszt wykonania 1 m² podjazdu z kostki brukowej wynosi od 160 do 230 zł.
Płyty betonowe i wielkoformatowe synonim nowoczesnej elegancji
Płyty betonowe, zwłaszcza te o dużych formatach, to doskonały wybór dla miłośników nowoczesnych, minimalistycznych rozwiązań. Podkreślają one geometryczny charakter posesji i nadają jej elegancki wygląd. Płyty betonowe są zazwyczaj bardzo wytrzymałe i odporne na warunki atmosferyczne. Ich cena jest nieco wyższa niż kostki brukowej, a koszt wykonania 1 m² podjazdu z płyt betonowych może wynosić od 170 do 350 zł.
Kamień naturalny luksus i trwałość na pokolenia
Kamień naturalny, taki jak granit, to synonim luksusu, prestiżu i niezwykłej trwałości. Podjazd wykonany z kamienia prezentuje się niezwykle efektownie i może służyć przez dziesiątki lat. Jest to jednak rozwiązanie z najwyższej półki cenowej, a jego montaż wymaga często specjalistycznej wiedzy. Koszt kamienia naturalnego jest znacząco wyższy niż tradycyjnej kostki czy płyt betonowych.
Żwir i kruszywo ekonomiczne i naturalne rozwiązanie
Jeśli szukamy najtańszej opcji, żwir lub inne kruszywo mogą być atrakcyjnym wyborem. Podjazdy z kruszywa są proste w wykonaniu i bardzo dobrze przepuszczają wodę, co jest ich ekologiczną zaletą. Należy jednak pamiętać, że taka nawierzchnia wymaga regularnego uzupełniania, a poruszanie się po niej może być mniej komfortowe, zwłaszcza na obcasach czy dla osób starszych. Jest to rozwiązanie bardziej tymczasowe lub przeznaczone na mniej uczęszczane podjazdy.
Nawierzchnie ażurowe i ekologiczne zielony podjazd w zgodzie z naturą
Płyty ażurowe, potocznie zwane eko-kratkami, to innowacyjne rozwiązanie, które pozwala na stworzenie nawierzchni przepuszczalnej dla wody. Puste przestrzenie w kratkach można wypełnić kruszywem, kamieniem lub zasiać w nich trawę, tworząc tzw. zielony podjazd. Jest to opcja przyjazna środowisku, która doskonale sprawdza się w miejscach, gdzie chcemy zminimalizować utwardzoną powierzchnię i jednocześnie zapewnić stabilne podłoże dla pojazdów.
Krok 3: Sekrety trwałej konstrukcji, czyli co kryje się pod nawierzchnią
Wygląd nawierzchni to tylko część sukcesu. Prawdziwy fundament trwałości podjazdu stanowi jego konstrukcja, a w szczególności odpowiednio wykonana podbudowa. To ona decyduje o tym, czy podjazd będzie służył nam przez lata, czy też zacznie się zapadać i pękać już po kilku sezonach.
Dlaczego prawidłowa podbudowa jest ważniejsza niż sama nawierzchnia?
Podbudowa jest jak fundament domu to ona przenosi obciążenia i zapewnia stabilność całej konstrukcji. Nawet najdroższa i najtrwalsza kostka brukowa czy płyty betonowe nie spełnią swojej roli, jeśli zostaną ułożone na źle przygotowanym podłożu. Niewystarczająca lub źle zagęszczona podbudowa prowadzi do nierówności, pęknięć, a nawet zapadania się nawierzchni, co generuje konieczność kosztownych napraw. Dlatego właśnie prawidłowe wykonanie podbudowy jest absolutnie kluczowe dla długowieczności podjazdu.
Warstwy podbudowy krok po kroku od korytowania po zagęszczanie
Budowa podjazdu rozpoczyna się od tzw. korytowania, czyli usunięcia wierzchniej warstwy ziemi (humusu) na głębokość odpowiednią dla planowanej konstrukcji. Następnie, w zależności od warunków gruntowych i przewidywanych obciążeń, układa się geowłókninę, która zapobiega mieszaniu się warstw i wzmacnia podłoże. Kolejnym etapem jest wysypanie i staranne zagęszczenie warstwy nośnej, zazwyczaj z kruszywa, takiego jak tłuczeń czy gruby żwir. Na to kładzie się warstwę wyrównawczą, np. z piasku lub drobnego grysu, która stanowi podłoże pod właściwą nawierzchnię. Kluczowe jest dokładne zagęszczanie każdej z warstw za pomocą wibratora płytowego, aby zapewnić maksymalną stabilność.
Grubość nawierzchni a typ pojazdów co musisz wiedzieć dla aut osobowych i cięższych?
Grubość materiału nawierzchniowego powinna być dostosowana do rodzaju pojazdów, które będą z niej korzystać. Dla samochodów osobowych, których dopuszczalna masa całkowita nie przekracza 3,5 tony, zazwyczaj wystarczająca jest nawierzchnia o grubości 6 cm, np. kostka brukowa o standardowych wymiarach. Jeśli jednak planujemy intensywne użytkowanie podjazdu przez cięższe pojazdy, takie jak samochody dostawcze, ciężarówki czy kampery, zaleca się stosowanie nawierzchni o grubości co najmniej 8 cm, a także odpowiednio mocniejszą podbudowę.
Rola krawężników i obrzeży w stabilizacji konstrukcji
Krawężniki i obrzeża to elementy, które często postrzegamy głównie jako wykończenie estetyczne podjazdu. Pełnią one jednak niezwykle ważną funkcję konstrukcyjną. Ich zadaniem jest stabilizacja nawierzchni, zapobieganie jej rozsuwaniu się na boki pod wpływem obciążeń i czynników atmosferycznych. Dzięki solidnemu zamocowaniu krawężników, kostka brukowa czy płyty betonowe pozostają na swoim miejscu, co znacząco przedłuża żywotność całego podjazdu i zapobiega powstawaniu nieestetycznych szczelin i nierówności.
Estetyka i harmonia jak dopasować podjazd do stylu domu i ogrodu?
Podjazd to integralna część krajobrazu wokół domu. Jego wygląd powinien harmonijnie współgrać z architekturą budynku i stylem ogrodu, tworząc spójną i estetyczną całość. Odpowiednio zaprojektowany podjazd może stać się ozdobą posesji, a nie tylko funkcjonalnym elementem.
Dobór koloru i faktury nawierzchni do elewacji i dachu
Kluczem do stworzenia spójnej kompozycji jest dopasowanie materiału i koloru podjazdu do dominujących barw elewacji, dachu oraz stolarki okiennej. Do nowoczesnych, minimalistycznych domów świetnie pasują gładkie, wielkoformatowe płyty betonowe w stonowanych kolorach, takich jak szarość, grafit czy biel. W przypadku budynków o bardziej tradycyjnej architekturze, doskonale sprawdzi się klasyczna kostka brukowa w naturalnych odcieniach brązu, beżu czy czerwieni, która nawiąże do cegły lub kamienia elewacyjnego. Ważne jest, aby unikać zbyt kontrastowych połączeń, które mogłyby zaburzyć harmonię.
Nowoczesne trendy w aranżacji podjazdów minimalizm, geometria i łączenie materiałów
Współczesne trendy w projektowaniu podjazdów skłaniają się ku minimalizmowi i geometrycznym formom. Popularnością cieszą się proste linie, duże formaty płyt, a także subtelne wzory układane z kostki brukowej. Coraz częściej projektanci decydują się również na świadome łączenie różnych materiałów, tworząc ciekawe kontrasty i faktury. Przykładem może być połączenie gładkich płyt betonowych z kamieniem ozdobnym, kostki z elementami zieleni, czy wykorzystanie podjazdów z ażurowych płyt wypełnionych kruszywem lub trawą.
Oświetlenie podjazdu jak połączyć estetykę z bezpieczeństwem po zmroku?
Odpowiednie oświetlenie podjazdu pełni podwójną funkcję zwiększa bezpieczeństwo, ułatwiając poruszanie się po zmroku i zapobiegając potknięciom, a także podkreśla jego estetykę, tworząc przyjemny nastrój. Dostępne są różne rozwiązania, od niskich słupków oświetleniowych, przez lampy najazdowe, po dyskretne taśmy LED wbudowane w nawierzchnię lub obrzeża. Wybór oświetlenia powinien być dopasowany do stylu posesji i podkreślać jej architekturę.
Integracja podjazdu z zielenią jak efektownie wkomponować roślinność?
Podjazd nie musi być jednolitą, utwardzoną powierzchnią. Można go efektownie wkomponować w zieleń, tworząc bardziej naturalny i przyjazny krajobraz. Rozwiązaniem mogą być rabaty kwiatowe lub krzewy umieszczone wzdłuż podjazdu, drzewa sadzone w strategicznych miejscach, czy wspomniane już nawierzchnie ażurowe, które pozwalają na wzrost trawy. Taka integracja z zielenią nie tylko poprawia estetykę, ale również przyczynia się do zwiększenia powierzchni biologicznie czynnej na działce.
Prawo, budżet i wykonawstwo o czym jeszcze musisz pamiętać?
Oprócz kwestii projektowych i estetycznych, istnieją również ważne aspekty prawne, finansowe i wykonawcze, o których należy pamiętać, planując budowę podjazdu.
Podjazd a przepisy budowlane co mówi plan zagospodarowania przestrzennego?
Przed rozpoczęciem jakichkolwiek prac budowlanych związanych z utwardzeniem terenu pod podjazd, kluczowe jest sprawdzenie zapisów Miejscowego Planu Zagospodarowania Przestrzennego (MPZP) lub uzyskanie decyzji o warunkach zabudowy. Dokumenty te mogą nakładać pewne ograniczenia, na przykład dotyczące maksymalnego procentu powierzchni działki, który można utwardzić. Często wymagane jest również zachowanie określonego minimalnego udziału powierzchni biologicznie czynnej (np. terenów zielonych), co może wpłynąć na wielkość i kształt planowanego podjazdu.
Ile kosztuje budowa podjazdu? Analiza kosztów materiałów i robocizny
Całkowity koszt budowy podjazdu jest zmienny i zależy od wielu czynników, takich jak powierzchnia, wybrany materiał nawierzchniowy, rodzaj podbudowy oraz stawki robocizny. Orientacyjne koszty samych materiałów nawierzchniowych to: kostka brukowa 160-230 zł/m², płyty betonowe 170-350 zł/m². Należy doliczyć do tego koszt podbudowy, który może wynieść około 100-120 zł/m². Najtańszą opcją materiałową jest żwir. Do tych kwot dochodzi koszt pracy ekipy budowlanej, który również może być znaczący.
Przeczytaj również: Jakie płytki na podjazd? Wybierz mądrze poradnik
Najczęstsze błędy przy projektowaniu podjazdu i jak ich unikać
Podczas planowania i budowy podjazdu można popełnić kilka typowych błędów, które negatywnie wpływają na jego funkcjonalność i trwałość. Należą do nich przede wszystkim: brak odpowiednich spadków, co prowadzi do zastojów wody; niewystarczająca lub źle wykonana podbudowa, skutkująca osiadaniem nawierzchni; zły dobór materiału do przewidywanych obciążeń; ignorowanie przepisów prawnych dotyczących utwardzania terenu; brak spójności estetycznej z otoczeniem domu i ogrodu; a także zbyt małe wymiary podjazdu, utrudniające manewrowanie.
